Kontener biurowy to wygodne rozwiązanie, gdy potrzebujesz szybkiego zaplecza do pracy, ale nie chcesz od razu wchodzić w koszt i czas budowy tradycyjnego biura. Najwięcej zależy tu od rozmiaru: od niego zależy nie tylko liczba stanowisk, lecz także komfort, ustawienie mebli, miejsce na dokumenty i to, czy w środku da się sensownie wydzielić aneks albo WC. W praktyce warto patrzeć nie tylko na metry, ale też na układ, wysokość wewnętrzną i to, jak moduł sprawdzi się przy garażu, warsztacie albo na działce gospodarczej.
Najważniejsze rozmiary i decyzje na start
- Najczęściej spotyka się moduły o długości 6 m, a w większych realizacjach także 7-12 m.
- Szerokość 2,4-2,5 m to wariant bardziej kompaktowy, a 3,0 m daje wyraźnie więcej swobody w ustawieniu biurka i szaf.
- Wymiary zewnętrzne i użytkowe nie są takie same, bo część przestrzeni zabiera izolacja, konstrukcja i wykończenie ścian.
- Do małego biura dla 1-2 osób zwykle wystarcza moduł 6 m, ale do pracy z dokumentami i spotkań lepiej sprawdza się szerszy kontener.
- Przy ustawieniu obok garażu lub obiektu gospodarczego ważne są też dojazd, rozładunek i miejsce na otwieranie drzwi oraz okien.
- Jeśli planujesz użytkowanie całoroczne, sprawdź wysokość wewnętrzną, ogrzewanie i układ instalacji, a nie tylko sam metraż.
Kontener biurowy wymiary i standardy, które najczęściej spotkasz
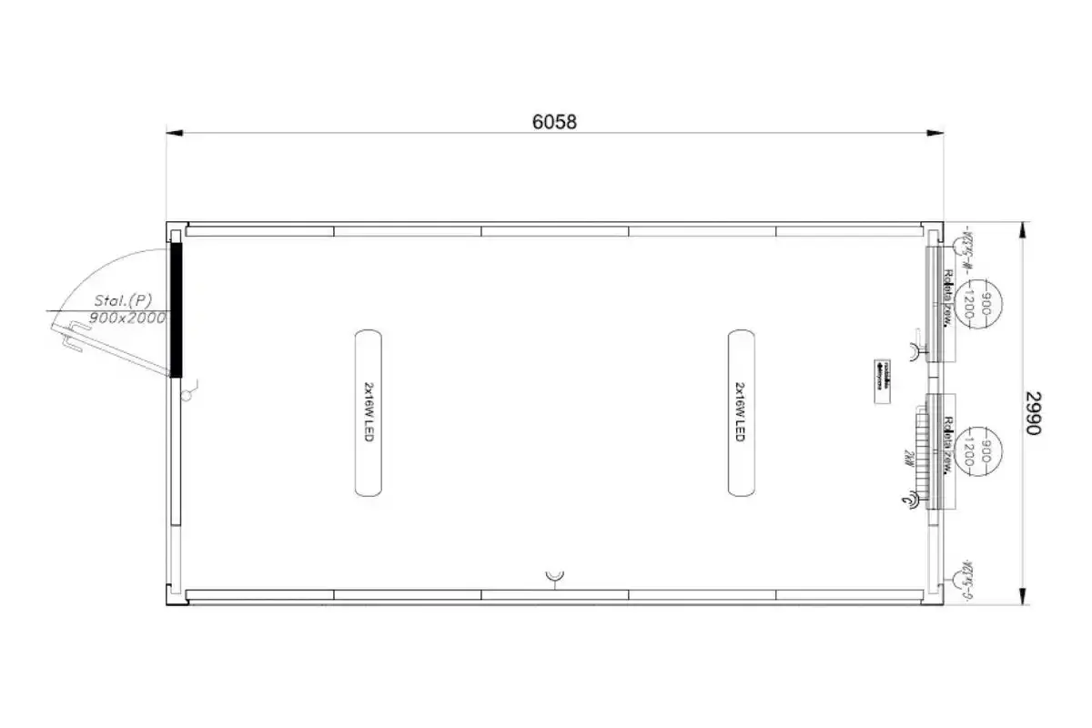
Na rynku nie ma jednego sztywnego formatu, ale w praktyce dominuje kilka powtarzalnych wymiarów. Najpopularniejsze są moduły zbliżone do kontenera 20-stopowego, czyli o długości około 6 m, szerokości około 2,4-2,5 m i wysokości zewnętrznej w okolicach 2,6-2,8 m. W wersjach biurowych i biurowo-sanitarnych spotyka się też szersze konstrukcje 6 x 3 m oraz większe moduły 7-12 m długości.
Najważniejsza różnica polega na tym, że część producentów podaje wymiary zewnętrzne, a część podkreśla powierzchnię użytkową. To nie jest detal. Dwa kontenery o podobnej długości mogą dawać zupełnie inne odczucie przestrzeni, jeśli jeden ma grubszą izolację, wyższy dach albo wydzielony aneks sanitarny.
| Typowy wariant | Co daje w praktyce | Dla kogo będzie sensowny |
|---|---|---|
| 6,0 x 2,4-2,5 m | Około 13-15 m² powierzchni użytkowej, układ raczej kompaktowy | Jedno stanowisko pracy, punkt dozoru, małe zaplecze przy garażu lub warsztacie |
| 6,0 x 3,0 m | Około 17-18 m², wyraźnie lepsza swoboda ustawienia mebli | Małe biuro dla 1-2 osób, praca z dokumentami, mały stół spotkaniowy |
| 7,0 x 3,0 m | Około 21 m², łatwiej wydzielić strefę pracy i przechowywania | Biuro z szafami, archiwum albo niewielkim zapleczem technicznym |
| 8,0-12,0 x 3,0 m | Około 24-36 m², przestrzeń pod kilka stanowisk lub układ z aneksem | Mały zespół, biuro firmowe, obsługa inwestycji, wygodniejsza strefa socjalna |
Warto też pamiętać o wysokości. W kontenerach biurowych zwykle mieści się ona w przedziale około 2,34-2,52 m wewnątrz, ale zależy to od systemu producenta i grubości zabudowy. To wystarcza do normalnej pracy, jednak przy mocnym ociepleniu i zabudowie sufitu odczuwalna przestrzeń może być mniejsza niż sugeruje katalog.
Co naprawdę zmniejsza albo zwiększa odczuwalną przestrzeń
Sam metraż to dopiero początek. Dwa kontenery o identycznym wymiarze zewnętrznym mogą dawać inne wrażenie, jeśli jeden ma więcej okien, drugi grubszą izolację, a trzeci dodatkową ścianę działową. W biurze liczy się nie tylko powierzchnia podłogi, ale też to, czy da się ustawić biurko, krzesło, szafę na dokumenty i zostawić swobodny przejście.
- Izolacja ścian i dachu zabiera kilka centymetrów z każdej strony, ale poprawia komfort całoroczny.
- Ściany działowe pomagają porządkować przestrzeń, lecz w małym module szybko odbierają odczucie przestronności.
- Aneks sanitarny jest praktyczny, ale sens ma głównie wtedy, gdy kontener ma minimum sensowną długość.
- Duże okna nie zwiększają realnego metrażu, ale wyraźnie poprawiają wrażenie przestrzeni i komfort pracy.
- Układ drzwi ma znaczenie przy meblowaniu. Zły kierunek otwierania potrafi zepsuć nawet dobrze dobrany rozmiar.
Jeżeli kontener ma służyć jako biuro przy obiekcie gospodarczym, zwykle lepiej sprawdza się prosty układ bez zbędnych przegród. Mniejsze moduły bywają kuszące cenowo, ale po ustawieniu mebli okazuje się, że brakuje miejsca na najprostsze rzeczy: szafkę na segregatory, drukarkę albo wieszak na odzież roboczą.

Jak dobrać rozmiar do garażu, warsztatu albo budynku gospodarczego
W otoczeniu garażu, warsztatu lub budynku gospodarczego kontener biurowy najczęściej pełni rolę zaplecza: miejsca do pracy przy dokumentach, rozmów z klientem, krótkiego odpoczynku albo przechowywania części i narzędzi. Tu najważniejsze jest dopasowanie rozmiaru do funkcji, bo zbyt mały moduł będzie irytował od pierwszego dnia, a zbyt duży może niepotrzebnie obciążyć budżet i logistykę ustawienia.
| Scenariusz | Rozsądny wybór | Dlaczego właśnie taki |
|---|---|---|
| Gabinet przy garażu na jednej posesji | 6,0 x 2,4-2,5 m | Wystarczy na biurko, krzesło, małą szafę i podstawowe wyposażenie. |
| Małe biuro dla działalności usługowej | 6,0 x 3,0 m lub 7,0 x 3,0 m | Daje wygodniejszy układ pracy i miejsce na klientów lub dokumenty. |
| Biuro z zapleczem technicznym | 8,0-10,0 x 3,0 m | Łatwiej wydzielić strefę roboczą, magazynową i socjalną. |
| Biuro przy warsztacie lub obiekcie gospodarczym | Minimum 6,0 m długości, najlepiej z szerszą bryłą | Przy pracy z narzędziami i dokumentacją ciasny układ szybko przestaje być wygodny. |
Na co uważać przy zamawianiu, żeby nie przepłacić za metry
Najczęstszy błąd polega na kupowaniu kontenera tylko na podstawie długości i szerokości z oferty. To za mało. Dla użytkownika liczy się realny komfort pracy, a ten zależy również od wysokości wnętrza, rodzaju izolacji, wyposażenia i sposobu transportu. Wąski moduł bywa tańszy, ale jeśli później trzeba dołożyć ogrzewanie, dodatkowe okna albo przebudować układ wnętrza, oszczędność szybko znika.
- Sprawdź, czy podane wymiary są zewnętrzne, czy użytkowe.
- Ustal, ile miejsca zabierze aneks sanitarny, jeśli ma się pojawić w projekcie.
- Nie zakładaj, że 6 m długości zawsze wystarczy na biuro, szafę i strefę spotkań.
- Jeśli kontener ma działać cały rok, zweryfikuj izolację dachu, podłogi i ścian.
- Przy ustawieniu na działce zwróć uwagę na dojazd HDS-em albo innym sprzętem do rozładunku.
- Nie ignoruj rozmieszczenia okien i drzwi, bo to ono decyduje o tym, czy meble da się ustawić logicznie.
W małych realizacjach najdroższe okazuje się nie samo miejsce, lecz błędnie dobrany układ. Kontener, który teoretycznie ma wystarczającą powierzchnię, może być niewygodny, jeśli wejście koliduje z biurkiem albo jeśli od początku zabraknie przestrzeni na przechowywanie.
Kiedy lepiej połączyć dwa moduły zamiast brać jeden większy
Jeżeli potrzebujesz biura, które ma rosnąć razem z firmą, dwa połączone moduły często dają większą elastyczność niż jeden bardzo duży kontener. To rozwiązanie ma sens zwłaszcza wtedy, gdy chcesz oddzielić strefę pracy od zaplecza albo przewidujesz późniejsze zmiany układu.
Łączenie modułów sprawdza się w kilku sytuacjach: gdy jedno pomieszczenie ma służyć jako biuro, drugie jako magazyn dokumentów; gdy potrzebujesz osobnego miejsca na rozmowy z klientem; albo gdy obok garażu ma powstać bardziej rozbudowane zaplecze dla ekipy. Minusem jest większa złożoność projektu, bo trzeba wtedy dokładniej przemyśleć połączenia, instalacje i sposób komunikacji między częściami.
W praktyce jedna duża bryła jest prostsza i szybsza do ustawienia, ale dwa moduły pozwalają lepiej uporządkować funkcje. Przy inwestycjach na działkach prywatnych i przy obiektach gospodarczych to często rozsądniejszy wybór niż "na siłę" duży, pojedynczy kontener, który nie pasuje do układu terenu.